Посмотреть все Товары »
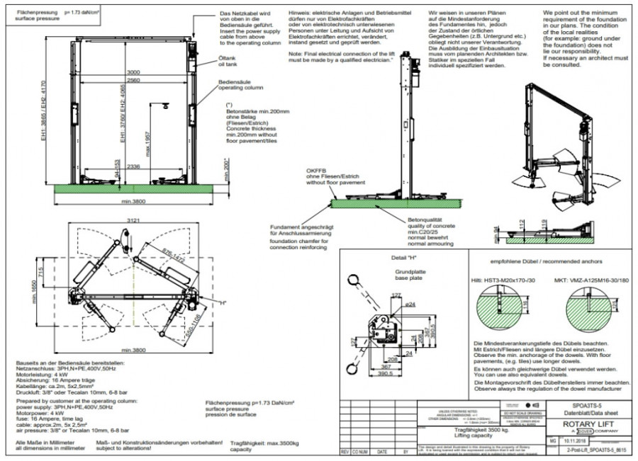
Hydraulic Two-Post-Lift 3,5T SPOA3TS-5 with EH2 height exten, Blitz
Код товара:SPOA3TS-5-EH2&BLI
Спросить предложение
Заводской заказ. Cпроси время доставкиklient@stokker.com
Доставка курьером
начиная с "ЦЕНА"€



